rendering of the exterior view of the new student housing residence in Kelowna campus

Campus housing in Kelowna

Experience comfortable and convenient campus housing in one of our two buildings: citxʷ kl snmymyaʔtn  (Home for School) and Skaha Place.

Located on the south-west corner of our Kelowna campus, our two buildings - citxʷ kl snmymyaʔtn (Home for School)* and Skaha Place - are just minutes away from the campus fitness centre, Infusions Dining Room, the South Pandosy neighbourhood and several Okanagan Lake beaches.

 

*Traditional nsyilxcən name gifted by Syilx Okanagan Elders Pamela and Grouse Barnes

Quick facts

Skaha Place and citxʷ kl snmymyaʔtn  (Home for School) on our Kelowna Campus

Address:

Style: Apartments

Room types: Studios and multi occupancy apartments

Room options: Private studios as well as 2-, 4- and 5-room apartments

Total capacity:

  • Skaha Place - 144
  • citxʷ kl snmymyaʔtn  (Home for School) - 216

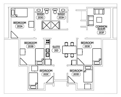
Room details and floor plans

Skaha Place and citxʷ kl snmymyaʔtn  (Home for School) on our Kelowna campus offer different room types to suit your needs. From cozy shared apartments to private studios, we have the perfect space for you. Each room is fully furnished and equipped with all the amenities you need for a comfortable stay.

Skaha (KHA) Building

Studio Rooms:

The Studio rooms at Skaha feature a cozy single bed, a kitchenette equipped with a fridge, stovetop, and microwave, and a comfortable desk with a desk chair for studying or working. A dresser provides ample storage space, while the private bathroom includes a standing shower, toilet, and sink.

Virtual tour

5-Bedroom Apartments:

The 5-bedroom apartments offer shared living spaces with single beds in each room. Each student has access to a desk with a desk chair and a dresser for personal belongings. The apartment includes two bathrooms with standing showers, toilets, and sinks. The shared kitchen is equipped with two fridges, a stove, an oven, and a microwave. A shared dining table and chairs are also available for group meals. 

Virtual tour

KHB Building

Studio Rooms:

The Studio rooms at KHB offer a comfortable Double XL bed and a kitchen equipped with a fridge, stove, oven, and microwave. A desk with a desk chair provides a study space, while the bathroom includes a standing shower, toilet, and sink. A sitting area with a couch and coffee table adds extra comfort to the room.

Virtual tour

KHB Studio - kitchen and bedroom

2-Bedroom:

In the 2-bedroom apartments, each room contains a Double XL bed and access to the shared kitchen with a fridge, stove, oven, and microwave. A desk with a desk chair is provided for each student, along with a private bathroom that includes a standing shower, toilet, and sink. The shared sitting area is equipped with a couch and coffee table, perfect for unwinding after a long day.

Kitchen in a KHB 2 bedroom

4-Bedroom Rooms:

Each 4-bedroom apartment features a Double XL bed, and the shared kitchen includes a fridge, stove, oven, and microwave. A desk with a desk chair is provided for each student. The apartment includes a bathroom with a standing shower, toilet, and sink. A shared sitting area with a couch and coffee table offers a space to relax.

Virtual tour

Living room and kitchen in KHB

Kelowna campus housing fees

Approximate Housing Fees for the Summer 2026 Semester (May- August), Academic Term 2026-2027 (September- April), and the Winter 2027 Semester (January-April). Housing fees are paid as a lump sum or can be split as per the Student Housing Agreement.

UNIT TYPE

citxʷkl snmymyaʔtn 
(Home for School)/ KHB Building

Skaha Place 
/ KHA building

Studio (1 occupant)

$1147.50 /month

$9180.00 /academic year 
$4590.00 /semester

$1018.75 /month

$8150.00 /academic year
$4075.00 /semester

2 Bedroom Apartment

$1096.25 /month

$8770.00 /academic year
$4385.00 /semester

N/A

N/A

4 Bedroom Apartment

$968.75 /month

$7750.00 /academic year
$3875.00 /semester

N/A

N/A

5 Bedroom Apartment

N/A

N/A

$763.75 /month

$6110.00 /academic year 
$3055.00 /semester

Fees include all utilities (i.e., electricity, heat, A/C) and internet access.

Apply for Kelowna campus housing today!

Experience comfortable and convenient living in Okanagan College campus housing. Apply for your spot today.

Features and amenities

Skaha Place and citxʷ kl snmymyaʔtn (Home for School) at the Kelowna campus have a variety of features and amenities that make living on campus convenient and comfortable.

All utilities included

Campus housing fees cover all utilities, including electricity, heat, air conditioning and water so you never need to worry about multiple bills.

High-speed internet

Stay connected seamlessly with high-speed WiFi. From research to entertainment, experience the power of uninterrupted connectivity, ensuring you're always at the forefront of the digital world.

24-hour assistance

Living on campus means you have support available 24/7. Whether it's through Housing Advisors, or our Campus Housing office staff, help is just a phone call away.

Common area in Skaha Place
Common spaces

With common lounges, TV rooms, and games rooms, there are plenty of recreational spaces in your home where you can socialize with your fellow students.

Kelowna student housing study room. Photo shows a room with comfortable chairs and spacious tables.
Study spaces

Whether you need a space for quiet study or to work on a group project, there are study and meeting rooms available in your campus home.

Laundry room in Kelowna campus housing
Laundry facilities

Living in campus housing eliminates the hassle of trying to find a laundromat, as there are laundry facilities conveniently located in your campus home.

Bike in a bike storage
Bicycle storage

Bring your bicycle and embrace an eco-friendly lifestyle! You have a safe and secure storage spot for your bike in your campus home.

Row of vending machines
Vending machines

Vending machines are conveniently located in your building for that late night craving!
 
 

View our amenities

Take a virtual tour of our amenities and discover your new favourite spots.

 

 


Our Standards

Our standards are the policies and procedures set for students who live in Okanagan College Housing. They are detailed in the Student Housing Agreement and the Housing Community Living Standards.

These documents provide expectations for students who live in Okanagan College Housing. It is through these standards that Student Housing can ensure all students have a safe, secure, responsible and respectful community.

We strive to provide an inclusive environment that promotes not only academic success of all our students, but fosters personal growth and development.

Housing Advisors

Housing Advisors are student staff  who live in housing and provide guidance, direction and support. They are role models for learning to balance your studies with being an active member of your campus community. In addition to helping other students transition to life in campus housing, they also organize social, educational and recreational activities and programs. 

Housing Advisors are on duty daily from 6:00 p.m. - 12:00 a.m. on weekdays and 6:00 p.m. - 1:00 a.m. on weekends to assist with the supports available to students living on campus.

Campus Housing office

The Campus Housing office is where you will find answers to all your housing questions. The office is open daily from 8:00 a.m. - 12:00 a.m.

FAQs

Find answers to common questions regarding on-campus housing.

To be eligible to live in campus housing, you must be a full-time student at Okanagan College. Housing is available year round. There may be opportunities for non-students to stay in campus housing May through August, however, students have priority at our on campus housing buildings.

Please keep an eye out on the student housing portal for further communication on when our applications open!

Yes, the non-refundable application fee of $100 is a processing fee only and does not guarantee you a room.

Yes! You can email our team at info@okanaganhousing.ca to receive a record of payments made. 

After you have applied, you will receive information about next steps. 

You will only be able to stay in housing for just the Fall Semester if you are graduating after the Fall Semester. You will apply for the Academic Year application and then email us at info@okanaganhousing.ca letting us know that you are graduating and we will adjust your booking terms. 

This is because you may already have an application for this term, or the application is not open yet. Please message our office at info@okanaganhousing.ca if this issue persists. 

Depending on whether you prefer a multiple or single occupancy room, there will be a process to indicate your preferences on a first come first served lottery system. 

No, there is not a meal plan for campus housing. Campus housing apartments and studios are equipped with a kitchen, and there are grocery stores and restaurants nearby.

Yes, there is parking available. Learn more about parking on campus.

Parking can be purchased through the parking website (https://oc.concordparking.com/) using your Okanagan College credentials. The Housing Department will provide a special code that allows you to purchase a permit, which is the only lot that permits overnight parking. This code will be provided after you are accepted into housing. If you have any questions or concerns regarding parking, please contact Parking Services at parking@okanagan.bc.ca

  • Things like candles and incense are considered a fire hazard so they are not allowed.
  • Acoustic guitars and keyboards without amplification are allowed; however, other instruments are not suitable for housing.
  • Regretfully, campus housing is not pet friendly.
  • Weapons, which includes but is not limited to hunting knives, swords, firearms, air guns, pellet guns, ammunition, and or replica guns or ammunition
  • Hot plates, deep fryers, appliances with open elements and open heat sources are not permitted. Only CSA approved electrical appliances with automatic shut off feature are allowed (such as kettles, toaster ovens, irons).
  • Kegs of beer, beer bottles, single serving glass containers
  • Drug paraphernalia
  • Hooks or nails that will be placed in the wall
  • Refrigerators or freezers (including mini fridges). Only refrigerators and freezers provided by the OC Housing will be allowed in the suites.
  • Absolutely nothing is to be pinned, taped, screwed, nailed, or stapled into any wall or furnishing within your room.
  • Prohibited items will be confiscated.

Campus housing is available year round for Okanagan College students. There may be opportunities for non-students to stay in campus housing May through August. OC students have priority at our on campus housing buildings.

If you are being sponsored, please send us an email at info@okanaganhousing.ca and we can work directly with you or who you are being sponsored by with payment for housing. 

Priority Access to campus housing

Okanagan College students—both new and returning—may qualify for Priority Access to campus housing. Eligible students can indicate their status directly on the Student Housing Portal through their application form. Priority Access helps ensure that students with specific needs or circumstances have improved opportunities to secure on-campus housing for their selected term and for eligible Trades programs.


Additional Priority Criteria

To receive Priority Access, you must meet at least one of the following:

  • Indigenous students
    You self-identify as Indigenous.
  • International students
    You are admitted to Okanagan College as an international student.
  • Students with disabilities
    You have a documented disability or ongoing medical condition that significantly affects your housing needs.
    Students should indicate this on their housing application and may need to provide supporting documentation through Accessibility Services.
  • Former youth in care
    You are a former youth in care and can provide verification as required.
  • Trades students
    You are enrolled in an eligible Trades program and require housing for the duration of your training.
  • Returning students
    You are returning to Okanagan College and have previously lived in housing.

How to apply

  1. Complete your housing application before the deadline.
  2. Indicate your Priority Access category (if any) on the application.
  3. Submit any required documentation if requested (e.g., disability verification, proof of former care status).
  4. Accept your academic admission offer on time to keep your housing application active.

Need Help?

Our team is here to support you. For questions about Priority Access or your eligibility, please email info@okanaganhousing.ca or call us at (250)- 862-5422

Kelowna

Accepted Payment Methods

Payment must be made directly to Housing. Do NOT pay through pay through my tuition.

  • Certified Cheque, Bank Draft, or Money Order (In Person or By Courier)

If paying by certified cheque, bank draft, or money order, the cheque must be made payable to "Okanagan College Housing - Kelowna".

We do not accept personal cheques.

If sending your certified cheque, bank draft, or money order via mail, it can be addressed to the following:

Okanagan College Housing - Kelowna - ATTN Manager 
880 K.L.O Road 
Kelowna, British Columbia 
V1Y 9K9 
Canada


Vernon

Accepted Payment Methods

Payment must be made directly to Housing. Do NOT pay through pay through my tuition.

  • Certified Cheque, Bank Draft, or Money Order (In Person or By Courier)

If paying by certified cheque, bank draft, or money order, the cheque must be made payable to "Okanagan College Housing - Vernon".

We do not accept personal cheques.

If sending your certified cheque, bank draft, or money order via mail, it can be addressed to the following:

Okanagan College Housing - Vernon - ATTN Manager 
880 K.L.O Road 
Kelowna, British Columbia 
V1Y 9K9 
Canada


Salmon Arm

Accepted Payment Methods

Payment must be made directly to Housing. Do NOT pay through pay through my tuition.

  • Certified Cheque, Bank Draft, or Money Order (In Person or By Courier)

If paying by certified cheque, bank draft, or money order, the cheque must be made payable to "Okanagan College Housing - Salmon Arm".

We do not accept personal cheques.

If sending your certified cheque, bank draft, or money order via mail, it can be addressed to the following:

Okanagan College Housing - Salmon Arm - ATTN Manager 
880 K.L.O Road 
Kelowna, British Columbia 
V1Y 9K9 
Canada


Penticton

TBA – we do not have our payment methods confirmed yet.  

Campus Housing

Address
880 KLO Rd., 
Kelowna, BC V1Y 9K9
Canada